Ref. 24924

 6
 

Eladó Lakás - 24924

Budapart | Modern 2 szobás lakás terasszal + exkluzív tetőkert lehetőséggel

XI. , Garda

42 m2
-
1 Háló
-
1 Fürdő
-
30 m2 Terasz

119,000,000 Ft

2,087,719 Ft / m2


Alaprajz
|
Pontos cím lekérése
Alaprajz
|
Pontos cím lekérése

Az ingatlan bemutatása

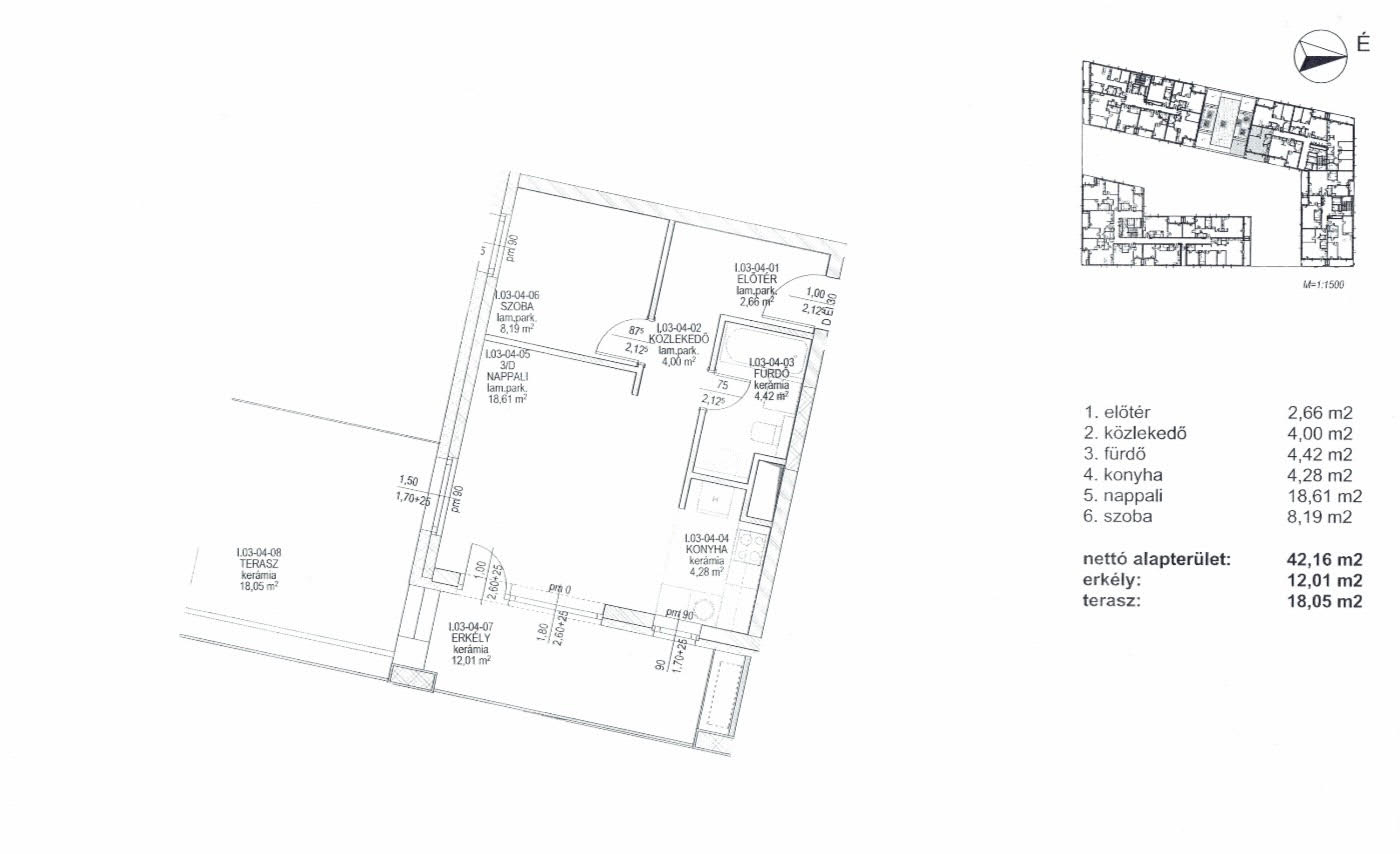
A XI. kerület egyik legmodernebb városrészében, Budaparton, eladó egy 42 m²-es, igényesen kialakított, két szobás lakás 12 m²-es és 18 m²-es teraszokkal, kivételes kültéri terekre nyíló kilátással.

A lakáshoz tartozik továbbá egy 200 m²-es, négy lakó által közösen használt tetőkert, amely egyéni igény szerint leválasztható, így akár saját privát rooftop tér, pihenőkert vagy pergolás lounge is kialakítható.
A tetőkertben két lakó már megvalósította saját részét, így a lehetőség adott és bevált.

Főbb jellemzők

  • 42 m²-es lakótér, nappali + hálószoba
  • Két irányba néző terasz: 12 m² és 18 m²
  • 200 m²-es közös tetőkert – leválasztható privát rész
  • Modern bútorozás, Stanley beépített szekrények
  • Azonnal költözhető állapot
  • Opcionális: garázs 15 M Ft, tároló 3,5 M Ft

Lokáció – Budapart

A Budapart egy új, dinamikusan fejlődő városnegyed kiváló infrastruktúrával, számos sportolási lehetőséggel, Duna-parti sétánnyal, éttermekkel, kávézókkal és szolgáltatásokkal.
Kifejezetten kedvelt fiatal párok és első lakást keresők körében.

Ideális választás mindazoknak, akik modern környezetet, kiváló közlekedést és kényelmes, aktív életstílust keresnek.

Adatlap

Megbízás: Eladó
Típus: Lakás
Hálók: 1
Fürdők: 1
Alapterület: 42 m2
Terasz: 30
Emelet: 3.
Irányár: 119,000,000 Ft
Négyzetméter ár: 2,087,719 Ft

Jellemzők

állapot:Újszerű
kilátás:kertre néző, tetőkert, városi panoráma
Riasztó:Van
Panoráma:Van
Légkondicionáló:Van
parkolás:Teremgarázs
lift: Van
fűtés:Házközponti fűtés
bútorozott: Igen

Elhelyezkedés

Alaprajz

|

Kapcsolat


Flott Invest

info@flottinvest.hu

Listázott ingatlanok

Az Adatvédelmi Tájékoztatót elolvastam és elfogadom. *

Kapcsolat


Flott Invest

info@flottinvest.hu

Listázott ingatlanok

Az Adatvédelmi Tájékoztatót elolvastam és elfogadom. *

Segítünk megtalálni a legjobb megoldást

Lépjen velünk kapcsolatba!


Flott Invest Real Estate Agency
1054 Budapest, Aulich utca 5.

info@flottinvest.hu

Flott Invest Real Estate Agency
A kiválasztott ingatlan – ID: 24924
Az Adatvédelmi Tájékoztatót elolvastam és elfogadom. *