Ref. 24924

 6
 

Apartment For sale - 24924

Budapart | Modern 2-room apartment with terrace + exclusive roof garden option

XI. , Garda

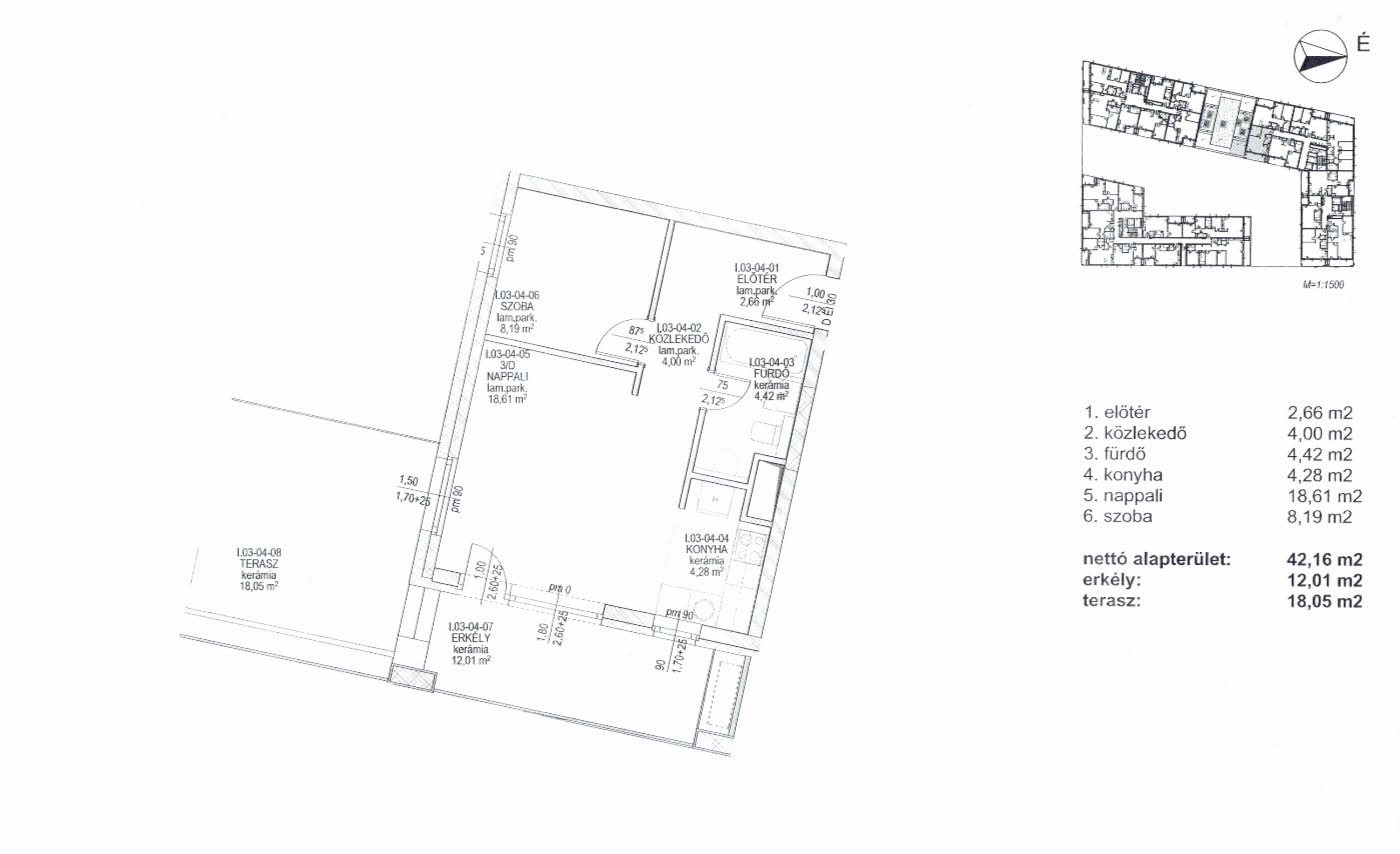
42 m2
-
1 Bedroom
-
1 Bathroom
-
30 m2 Terrace

119,000,000 HUF

2,087,719 HUF / m2


Floor plan
|
Get exact address
Floor plan
|
Get exact address

Presentation of the property

In one of the most modern parts of District XI, Budapest, a 42 m² (454 sq ft), tastefully designed, two-room apartment with 12 m² (130 sq ft) and 18 m² (200 sq ft) terraces is for sale, offering exceptional views of the surrounding outdoor spaces.

The apartment also has a 200 m² roof garden shared by four residents, which can be separated according to individual needs, allowing for the creation of a private rooftop space, relaxation garden or pergola lounge.
Two residents have already created their own sections of the roof garden, so the possibility is there and has been proven.

Key features

42 m² living space, living room + bedroom
Two terraces facing in two directions: 12 m² and 18 m
200 m² shared roof garden – separable private section
Modern furnishings, Stanley built-in wardrobes
Ready to move in immediately
Optional: garage 15 million HUF, storage room 3.5 million HUF
Location – Budapart

Budapart is a new, dynamically developing district with excellent infrastructure, numerous sports facilities, a promenade along the Danube, restaurants, cafés and services.
It is particularly popular among young couples and first-time homebuyers.

It is an ideal choice for those looking for a modern environment, excellent transport links and a comfortable, active lifestyle.

Data sheet

Listing type: For sale
Type: Apartment
Bedrooms: 1
Bathrooms: 1
Floor area: 42 m2
Terrace: 30
Floor: 3.
Asking price: 119,000,000 HUF
Price per square meter: 2,087,719 HUF

Features

condition:Recently built
view:garden view, roof garden, city panorama
Alarm system:Yes
View:Yes
Air condition:Yes
parking:Parking plot
elevator: Yes
heating:Building central
furnished: Yes

Location

Floor plan

|

Contact


Flott Invest

info@flottinvest.hu

Listed properties

I have read and accept the Privacy Notice. *

Contact


Flott Invest

info@flottinvest.hu

Listed properties

I have read and accept the Privacy Notice. *

We help you to find the best solution!

Contact us!


Flott Invest Real Estate Agency
1054 Budapest, Aulich utca 5.

info@flottinvest.hu

Flott Invest Real Estate Agency
The selected property - ID: 24924
I have read and understood the Terms and Conditions. *