Ref. 24746

 10
 

Eladó Ház - 24746

Badacsonyi ház a hegy lábánál

Balaton, Köbölkúthegy

200 m2
-
5 Háló
-
3 Fürdő
-
8000 m2 Telek

185,000,000 Ft

711,538 Ft / m2


Alaprajz
|
Pontos cím lekérése
Alaprajz
|
Pontos cím lekérése

Az ingatlan bemutatása

A Balaton-felvidéki Nemzeti Park szívében található ingatlan a Badacsony-hegy lábánál, az északi oldalon.

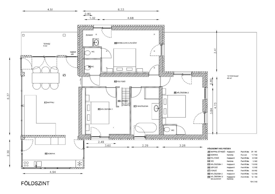
A földszinten nappali, három hálószoba, fürdőszoba és konyha található. Két hálószobához saját WC tartozik. A konyha kivételével (fan-coil) a földszint padlófűtéses.

A tetőtér összterülete 43 m2. Két hálószoba található mindkettőben nagy tetőablakkal, A tetőtéri ablakok környékén kényelmes a belmagasság. Kiváló vendég- vagy gyerekszobának. Fűtés és hűtés fan-coil segítségével. Az 54 m2-es pinceterület egy garázsból, egy munkahelyből és egy volt borospincéből áll, mely kívülről is megközelíthető.

Ez a borospince belső medencévé, wellness- vagy fitneszrészleggé alakítható.

Hőszivattyú került beépítésre fűtésre és hűtésre.

A ház körül egy 4 x 7 m-es, 1,5 méter mély medence és egy külső zuhanyzó található.

A fedett külső konyha mosogatóval, gáztűzhellyel és grillezővel felszerelt.

A ház hátsó részében hangulatos kert található, kilátással a Badacsonyra, apró gyümölcsökkel, fákkal, mogyoróbokrokkal.

Van egy 20 m mély kút és esővíztároló a növények öntözésére.

A ház kamerás megfigyelő rendszerrel felszerelt, zavartalan wifi kapcsolattal.

Az ingatlan kerítéssel le van zárva.

A ház előtt parkolóban két állásos parkoló taláható.

Szigliget 10 perces autóútra található.

A környező dombokra Badacsony-, Szent György- és Gulács-hegység pazar kilátás nyílik.

Adatlap

Megbízás: Eladó
Típus: Ház
Hálók: 5
Fürdők: 3
Alapterület: 200 m2
Terasz: 120
Irányár: 185,000,000 Ft
Négyzetméter ár: 711,538 Ft

Jellemzők

állapot:Felújított
Riasztó:Van
Külső medence:Van
fűtés:Hőszivattyú

Elhelyezkedés

Alaprajz

|

Kapcsolat


Valu Viktor

+36 70 776 3603

valuviktor@flottinvest.hu

Listázott ingatlanok

Az Adatvédelmi Tájékoztatót elolvastam és elfogadom. *

Kapcsolat


Valu Viktor

+36 70 776 3603

valuviktor@flottinvest.hu

Listázott ingatlanok

Az Adatvédelmi Tájékoztatót elolvastam és elfogadom. *

Segítünk megtalálni a legjobb megoldást

Lépjen velünk kapcsolatba!


Flott Invest Real Estate Agency
1054 Budapest, Aulich utca 5.
+36 70 776 3603
valuviktor@flottinvest.hu

Flott Invest Real Estate Agency
A kiválasztott ingatlan – ID: 24746
Az Adatvédelmi Tájékoztatót elolvastam és elfogadom. *

Hasonló ingatlanok