Ref. 24841

 20

Ref. 24841

 
Felújítandó lakás a Bazilika szomszédságában

V. Budapest, Zrínyi utca


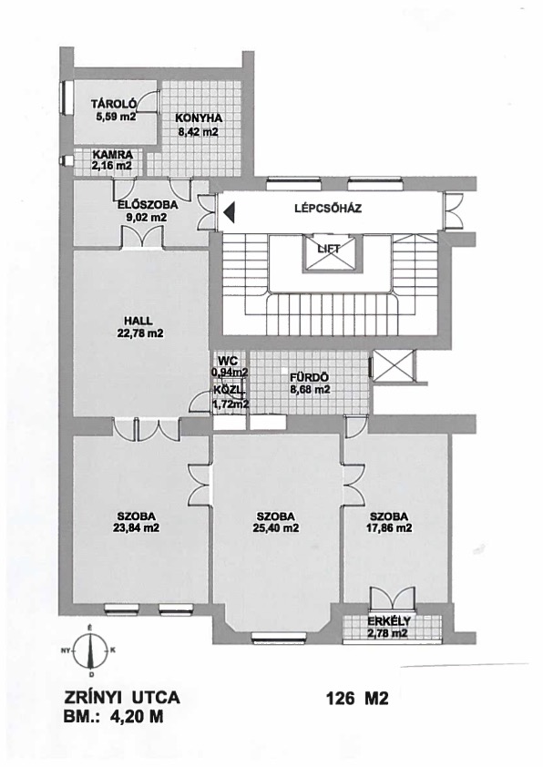
126 M2
Alapterület
3
Háló
1
Fürdő
2 M2
Terasz

Eladva


 

Az apartman rendkívül világos, nagy belmagasságú, 4. emeleti. A lakásból és az erkélyről is látható a Bazilika.

Nappali, 3 hálószoba, 1 fürdőszoba található benne.

A ház jó állapotú. A közelben éttermek, kávézók, boltok elérhetőek. Tömegközlekedéssel remekül megközelíthető.

 


ref.: 24841
típus: Lakás
terasz: 2 m2
állapot: Felújítandó
fűtés:

Bíró Györgyi

Ingatlan Tanácsadó

+36205556124
birogyorgyi@flottinvest.hu
További információ - ref. 24841
Az Adatvédelmi Tájékoztatót elolvastam és elfogadom. *

Elhelyezkedés

Bíró Györgyi

Ingatlan Tanácsadó

+36205556124
birogyorgyi@flottinvest.hu
További információ - ref. 24841
Az Adatvédelmi Tájékoztatót elolvastam és elfogadom. *
V. KERÜLET - BELVÁROS

Az egyik legkisebb, de az egyik legfontosabb kerület, ahol itt nyüzsög az összes turista, itt található a legtöbb sétálóutca, de ha résen vagyunk, a színes forgatagban ugyanúgy megtalálhatjuk itt is a rejtett zugokat, legyen az egy kis sikátor, egy megbúvó galéria vagy kávézó.

A5. V. kerületben találaható a Parlament, a Bazilika és a szinte a legtöbb és legmagasabb kategóriájú szálloda, illetve a város legfontosabb bevásárló utcája, a Váci utca. 

Legfontosabb látnivalók:

  • Parlament
  • Lánchíd
  • Erzsébet híd
  • Szent István Bazilika
  • Szabadság tér
  • Váci utca
  • Fashion Street
  • Erzsébet tér
  • Budapest Eye
  • Vörösmarty tér
V. KERÜLET - BELVÁROS
V. KERÜLET - BELVÁROS
V. KERÜLET - BELVÁROS
V. KERÜLET - BELVÁROS

Segítünk megtalálni a legjobb megoldást

Lépjen velünk kapcsolatba!


Flott Invest Real Estate Agency
1054 Budapest, Aulich utca 5.
+36 20 555 6124
birogyorgyi@flottinvest.hu

Flott Invest Real Estate Agency
A kiválasztott ingatlan – ID: 24841
Az Adatvédelmi Tájékoztatót elolvastam és elfogadom. *