Ref. 24444

 23
 

Eladó Lakás - 24444

Felújítandó lakás Újlipótvárosban

XIII. Budapest, Balzac

100 m2
-
2 Háló
-
1 Fürdő

Eladva


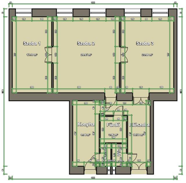
Alaprajz
|
Pontos cím lekérése
Alaprajz
|
Pontos cím lekérése

Az ingatlan bemutatása

Újlipótvárosban felújítandó, 3.emeleti utcai lakás eladó!
Az ingatlan tulajdoni lap szerint 100m2-es, valóságban 102,5 m2 mely jelenleg 2 hálószobából, 1 nappaliból, fürdőszobából, konyhából, kamrából, előszobából és vendég mosdóból áll. Remek az elosztása emiatt könnyen 2 háló-2 fürdőszobássá lehet alakítani.
Mindegyik szoba 2 nagy ablakkal rendelkezik ezért nagyon világosak.
A fűtése elektromos kályhákkal történik de a gáz is be van vezetve az ingatanba.
Az ingatlannak 2 bejárata van így akár két külön lakássá is lehet alakítani. Továbbá van lehetőség a szomszédos 58m2-es lakás megvásárlására is mellyel egy grandiózus 160m2-es 3 hálós-3 fürdős vagy 3 különálló lakást kialakítani.
Az épület 1910-ben épült jó állapotú, a belső homlokzat, körfolyosó néhány éve lett felújítva.
A lokáció nagyon kedvező! A west end bevásárló központ közelsége, a pozsonyi úti hangulat pár sarokra.
Parkolni az utcán vagy a közeli mélygarázsban lehetséges.
Befektetésre kiváló lehetőség!

Adatlap

Megbízás: Eladó
Típus: Lakás
Hálók: 2
Fürdők: 1
Alapterület: 100 m2
Emelet: 3.
Irányár: 91,900,000 Ft
Négyzetméter ár:
Warning: Undefined variable $negyzetmeter_ar in /home/flottinv/flottinvest.hu/html/site/templates/includes/realestate-property.inc on line 288
Közösköltség: 30500

Jellemzők

állapot:Felújítandó
kilátás:utcai
parkolás:Garázs bérelhető a közelben
lift: Van
fűtés:Elektromos

Elhelyezkedés

Fedezze fel a környéket

XIII. KERÜLET

A XIII. kerület ma a város egyik leggyorsabban fejlődő része.

A kerület közlekedés szempontjából is jól kiépített, olyan, nagy forgalmú utak kapcsolják be a városba, mint a Váci út – itt találjuk a budapesti irodaházak többségét –, a Róbert Károly körút, a Dózsa György út vagy a Szent István körút és a Carl Lutz rakpart, és olyan forgalmas csomópontokat találunk itt, mint a Göncz Árpád városközpont és a Lehel tér, ezek mindegyikén találunk busz- és trolijáratokat is. 

Sokaknak a XIII. kerület egyet jelent Újlipótváros 20-as, 30-as években épült modern bérházaival, és valóban, Budapest egyik legszebb modern épülete a Pozsonyi úton áll. A Dunapark-házak nemcsak a minőségi anyagokról, a márvány lépcsőházakról és a belső terek elegáns megjelenéséről és vonalvezetéséről híres, hanem a királykék lépcsőházairól is.

Újlipótváros mással nem összehasonlítható, egyedi lüktetésének vitán felül a Pozsonyi út adja a vérpezsdítően ütemes ritmusát, a városrész zsidó gyökerei a mai napig áthatják Újlipócia mindennapjait és gasztronómiáját, ahol a célközönség alapvetően az igényes és hű helyi lakosság. A környék nyugodtan nevezhető akár az alternatív étkezők paradicsomának is.

Budapest XIII. kerülete kulturálisan aránylag jól „felszerelt” része a fővárosnak, így aki helyben él és szórakozni vágyik, annak el sem kell hagynia a környéket – a kínálat nagyjából minden igényt kielégít, hiszen számos mozi és színház található a XIII. kerületben. 

 

 

XIII. KERÜLET
XIII. KERÜLET
XIII. KERÜLET

Alaprajz

|

Kapcsolat


Vass Apor

+36 30 291 9287

vassapor@flottinvest.hu

Listázott ingatlanok

Az Adatvédelmi Tájékoztatót elolvastam és elfogadom. *

Kapcsolat


Vass Apor

+36 30 291 9287

vassapor@flottinvest.hu

Listázott ingatlanok

Az Adatvédelmi Tájékoztatót elolvastam és elfogadom. *

Segítünk megtalálni a legjobb megoldást

Lépjen velünk kapcsolatba!


Flott Invest Real Estate Agency
1054 Budapest, Aulich utca 5.
+36 30 291 9287
vassapor@flottinvest.hu

Flott Invest Real Estate Agency
A kiválasztott ingatlan – ID: 24444
Az Adatvédelmi Tájékoztatót elolvastam és elfogadom. *