Ref. 24425

 8
 

Eladó Lakás - 24425

Újépítésű luxuslakás a XII. kerületben

XII. Budapest, .

216 m2
-
3 Háló
-
3 Fürdő

729,369,984 Ft

3,376,712 Ft / m2


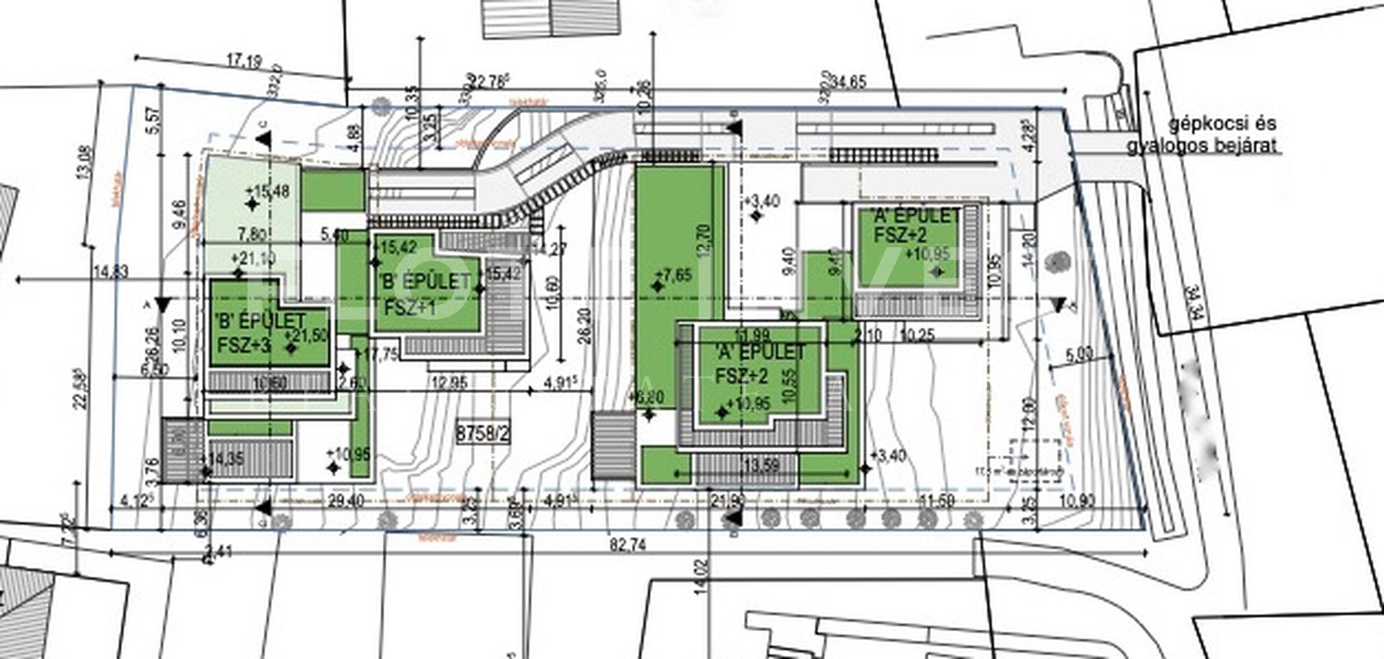
Alaprajz
|
Pontos cím lekérése
Alaprajz
|
Pontos cím lekérése

Az ingatlan bemutatása

XII kerületben, Széchenyi hegy és Mártonhegy között újépítésū villalakások. 2700 nm-en a Kiserdő mellett elhelyezkedő, városi és zöld övezeti panorámás telken épül 7 db exkluzív, luxus villalakás.

A lakóépülethez egy zsákutca vezet, ezért a forgalom minimális. MOM park, Bah csomópont pár perc autóval, mégis természet közeli érzést nyújt.

A lakás nettó lakóterülete 216nm, plusz 99 nm kert es 94 nm terasz. Nappali-konyha-étkező tér, 3 hálószoba, 3 gardrób, 3 fürdő, háztartási helyiség, vendég mosdó, közlekedők, 2 állásos privát garázs, kert.

A teljesség igénye nélkül:
AA+ energetikai besorolású okos otthon
2 db privát garázzsal és tárolóval
Önálló lépcsoházzal, ami különleges a luxusingatlan piacon is
Hatalmas méretű 70nm+ délre néző fűthető teraszok
Kizárólagos használatú kert
Vevő igényeire szabható belső terek
Applikacióról müködtetthetō zsaluziák és szellőztetō rendszer
Napelem rendszer, zöld tető
Hőszivattyú Daikin mennyezeti hűtés fűtés, padló fűtés,
Síkban záródó belső nyílászárók
Alu-fa külső nyílászárók harom rétegei üvegezéssel

Pár brand a kivitelelezésnél: Daikin, Hörmann, Marazzi, Laufen, Estorio, BVF Heating Solutions.

Rengeteg kényelmi funkció: Ujjlenyomattal nyitható ajtók, applikacioról vezérelhető okos otthon, wellness részleg egyes lakásokban.

12 hónapig ingyenes közös képviselet
Első kettő vásárlónak a konyhát a cég ajándékba adja.

További információért keressen mobilon, emailben.

Adatlap

Megbízás: Eladó
Típus: Lakás
Hálók: 3
Fürdők: 3
Alapterület: 216 m2
Emelet: 1.
Irányár: 729,369,984 Ft
Négyzetméter ár: 3,376,712 Ft

Jellemzők

kilátás:Városra
Riasztó:Van
Légkondicionáló:Van
Kandalló:Van
parkolás:Teremgarázs
fűtés:Mennyezet fűtés-hűtés
bútorozott: Igen

Elhelyezkedés

Fedezze fel a környéket

XII. KERÜLET

A XII. kerület a város egyik legzöldebb kerülete, ami nem csoda, hiszen a Budai-hegység magaslatain fekszik, telis-tele erdővel, tisztással és szuper kilátópontokkal, melyek közül az Erzsébet-kilátó és persze a Normafa – ahol a rétesező alap! – a legkedveltebb. A Svábhegyi Csillagvizsgálón és a Gyermekvasúton kívül tanösvényeket, számtalan századfordulós villát és csupa jó kis gasztrohelyet találunk!

Néha frissítő, néha megnyugtató – mikor mire vágyunk – a Budai-hegység lankáin kirándulgatni, és ha teljesen spontán döntünk a természetben való séta mellett, akkor viszonylag hamar ki is érünk a városból, még akkor is, ha a kocsi helyett a tömegközlekedést használjuk. A budai oldal közepén lévő Hegyvidék már egészen a város szélén fekszik, olyannyira, hogy nyugati része egyben Budapest határa is.

A XII. kerület ha nem is legzöldebb budapesti kerület, de az biztos, hogy az egyik. Amit csak azért érdemes megjegyezni, mert az inkább kertvárosias Hegyvidék nem kimondottan az a bulizós, társasági vidéke Budapestnek, így ha szórakozni vágyik az ember, jó eséllyel egy másik kerületet keres fel – bár azért ha keres, akkor itt is talál. Elsősorban persze olyan helyeket, ahol vacsorázhat, italozhat, miközben jóízűeket beszélget. 

A XII. kerületre inkább azok a helyszínek jellemzők, ahol több mindent kínál a repertoár: koncertet, színházat, irodalmi és standupestet, beszélgetéseket különféle tudományos, kulturális, közéleti témákban, táncot, esetleg kiállítást és a helyi lakosok számára közösségi kulturális kikapcsolódást. 

A kerület közlekedés szempontjából is jól kiépített, számos busz- és villamosjáratokat találunk ebben a kerüketben. Bár ha a Hegyvidéken járunk, buszok helyett jobb választás a villamos, áthalad itt az 56-os, az 59-es és a 61-es villamos is, de ami még ennél is izgalmasabb utazást biztosít, az a fogaskerekű. Aki viszont imádja a magasságot és nincs tériszonya, megéri kipróbálni a Zugligeti Libegőt is, ami csodás panorámát nyújt a városra, ráadásul elég jó randiopció is.

XII. KERÜLET
XII. KERÜLET
XII. KERÜLET

Alaprajz

|

Kapcsolat


Valu Viktor

+36 70 776 3603

valuviktor@flottinvest.hu

Listázott ingatlanok

Az Adatvédelmi Tájékoztatót elolvastam és elfogadom. *

Kapcsolat


Valu Viktor

+36 70 776 3603

valuviktor@flottinvest.hu

Listázott ingatlanok

Az Adatvédelmi Tájékoztatót elolvastam és elfogadom. *

Segítünk megtalálni a legjobb megoldást

Lépjen velünk kapcsolatba!


Flott Invest Real Estate Agency
1054 Budapest, Aulich utca 5.
+36 70 776 3603
valuviktor@flottinvest.hu

Flott Invest Real Estate Agency
A kiválasztott ingatlan – ID: 24425
Az Adatvédelmi Tájékoztatót elolvastam és elfogadom. *