Ref. 24190

 15
 

Kiadó Lakás - 24190

24190

VI. Budapest, Király utca

85 m2
-
2 Háló
-
2 Fürdő

Jelenleg bérbeadva


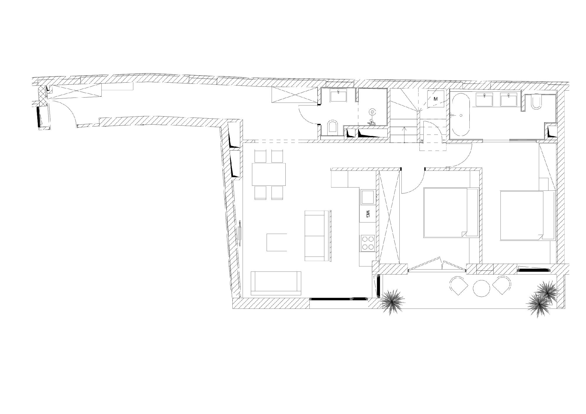
Alaprajz
|
Pontos cím lekérése
Alaprajz
|
Pontos cím lekérése

Az ingatlan bemutatása

Budapest pezsgő szívében az Operaház és az Andrássy út mellett kiadó egy luxus szinten megtervezett és berendezett 85m2-es hatalmas panorámás tetőterasszal rendelkező penthouse lakás.
Az épület egyik különlegessége, hogy a Hild József által tervezett eredeti homlokzat visszaállításával újult meg az épület, a műemléki épületrészen visszaépültek a korábbi homlokzat díszes elemei.
Az épület nem csupán a város lüktető szívében helyezkedik el, de a lehető legmagasabb életminőséget is nyújtja. Túl a panorámás fűthető tetőtéri medence és tetőterasz látványos luxusán, egyedi, kényelmi funkciók is kényeztetik a lakókat. Ilyen a recepció, a 24 órás porta- és biztonsági szolgálat, a mélygarázs.
A lakás 85 m2-es, 2 hálószobás belsőépítészek által megtervezett és luxus szinten kivitelezett. Mind az anyagok felhasználása mind a lakás stílusa egy igazi kozmopolita életet tesz lehetővé.
A lakás teljesen felszerelt és gépesített. Egy kádas ensuite és egy külön zuhanyzós fürdőszobával rendelkezik. Rengeteg tároló és beépített szekrénnyel, mosókonyhával, 15m2-es erkéllyel és egy hatalmas 50 m2-es panorámás tetőterasszal rendelkezik ahol akár BBQ-zni akár napozni is lehet.

Parkolni az épület aljában elhelyezkedő mélygarázsban van lehetőség.
Az épület közelében zöldséges, élelmiszerüzlet, gyógyszertár, étterem, bár, játszótér, edzőterem is megtalálható.
Tömegközlekedés szempontjából pedig M1,M2,M3-as metró és troli 5 percen belül gyalog elérhető.

Adatlap

Megbízás: Kiadó
Típus: Lakás
Hálók: 2
Fürdők: 2
Alapterület: 85 m2
Emelet: 7.
Irányár: 840,000 Ft/hó
Közösköltség: 51000

Jellemzők

Riasztó:Van
Panoráma:Van
Légkondicionáló:Van
Szauna:Van
Fűthető külső medence:Van
parkolás:Garázs vásárolható
lift: Van
fűtés:Hőszivattyú
bútorozott: Igen

Elhelyezkedés

Fedezze fel a környéket

VI. KERÜLET

A VI. kerületben megtalálható mindenből egy kicsi. Lehet, hogy nem ez Budapest fő turisztikai látványossága, de még mindig sétatávolságra van az érdekesebb látnivalóktól. Tele van élettel, rengeteg csúcskategóriás dizájnerbolttal, elegáns butikokkal, kávézókkal, bárokkal és éttermekkel. Annak ellenére, hogy itt is lehet előkelőbb helyeket találni, ez a terület népszerűbb a hátizsákos turisták és a pénztárcabarát utazók körében.

Az ikonikus Andrássy út egyre népszerűbb művészeti és kulturális célponttá vált, és az UNESCO Világörökség része is. Itt található Európa legrégebbi metróvonala, az M1-es.

Terézváros legfontosabb nevezetességei:

Andrássy út
Magyar Állami Operaház
Liszt Ferenc Zeneakadémia
Terror Háza
M1 metró

VI. KERÜLET
VI. KERÜLET
VI. KERÜLET

Alaprajz

|

Kapcsolat


Vass Apor

+36 30 291 9287

vassapor@flottinvest.hu

Listázott ingatlanok

Az Adatvédelmi Tájékoztatót elolvastam és elfogadom. *

Kapcsolat


Vass Apor

+36 30 291 9287

vassapor@flottinvest.hu

Listázott ingatlanok

Az Adatvédelmi Tájékoztatót elolvastam és elfogadom. *

Segítünk megtalálni a legjobb megoldást

Lépjen velünk kapcsolatba!


Flott Invest Real Estate Agency
1054 Budapest, Aulich utca 5.
+36 30 291 9287
vassapor@flottinvest.hu

Flott Invest Real Estate Agency
A kiválasztott ingatlan – ID: 24190
Az Adatvédelmi Tájékoztatót elolvastam és elfogadom. *