Szentendre, Nyírfa utca
398,000,000 HUF
1,374,784 HUF / m2
Presentation of the property
Unique luxury property in one of Szentendre's best locations, with a wonderful panoramic view of the Danube.
The plot with exceptional features is currently available for purchase of both semi-detached houses, so it can be used for multifunctional purposes (multi-generational cohabitation, business, rental, etc.).
A heat pump cooling and heating system, heat recovery ventilation and the preparation of a solar panel system, all of which are key pillars of the design in terms of energy efficiency, can be operated at tariff H. Due to its south-east orientation, the property is very bright and sunny.
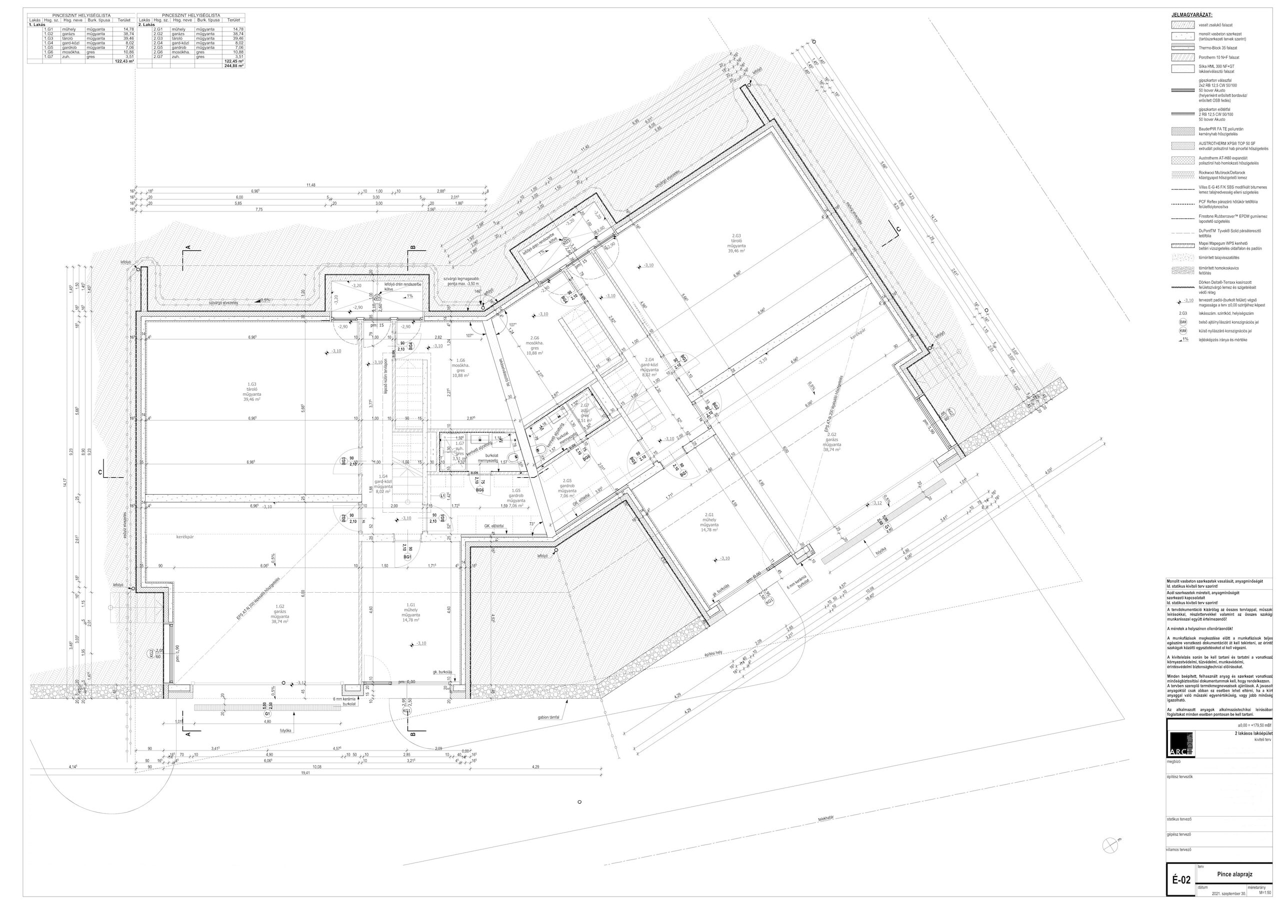
Handover date: Q3 2023 with the following technical content:
- 15cm reinforced concrete masonry 20cm (15cm outside, 5cm inside) with graphite polystyrene insulation and Ytong partition walls
- monolithic reinforced concrete intermediate and end slab
- plastic windows with 3 layers of glazing, tinted inside and outside
- motorised aluminium shutters
- heat pumped ceiling heating-cooling and underfloor heating
- heat recovery mechanical ventilation
- installation of a basic alarm ...more
Unique luxury property in one of Szentendre's best locations, with a wonderful panoramic view of the Danube.
The plot with exceptional features is currently available for purchase of both semi-detached houses, so it can be used for multifunctional purposes (multi-generational cohabitation, business, rental, etc.).
A heat pump cooling and heating system, heat recovery ventilation and the preparation of a solar panel system, all of which are key pillars of the design in terms of energy efficiency, can be operated at tariff H. Due to its south-east orientation, the property is very bright and sunny.
Handover date: Q3 2023 with the following technical content:
- 15cm reinforced concrete masonry 20cm (15cm outside, 5cm inside) with graphite polystyrene insulation and Ytong partition walls
- monolithic reinforced concrete intermediate and end slab
- plastic windows with 3 layers of glazing, tinted inside and outside
- motorised aluminium shutters
- heat pumped ceiling heating-cooling and underfloor heating
- heat recovery mechanical ventilation
- installation of a basic alarm system with motion and opening sensors, intercom, cable TV and internet preparation
- preparation of solar panel system
- interior doors up to 100.000.- HUF + VAT/each
- coverings up to 10.000.-Ft+faq/m2
- tiles, sanitary ware and wall colours can be customised
- garden tap
- paving from the gate to the garage entrances
- fencing around the property and, if required, separating the plots
- plastered retaining wall or gabion basket between the two properties at garage level
- electric car charger
Sanitary ware, tiling and wall colours can be customised. There will be a two-stall garage with electric car charger, a wellness/fitness room, a study/office, a living room with American kitchen, 4 bedrooms and 3 bathrooms per house.
The parameters and listing price given are for one semi-detached house.
...lessData sheet
Features
Location
All images
We help you to find the best solution!
Contact us!
Flott Invest Real Estate Agency
1054 Budapest, Aulich utca 5.
+36 30 291 9287
vassapor@flottinvest.hu
Similar properties