Ref. 24941

 2
/home/flottinv/flottinvest.hu/html/site/templates/includes/realestate-slideshow.inc on line 172
" class="uk-transition-scale-up uk-transition-opaque" uk-cover>
 

Apartment For sale - 24941

Apartment for refurbishment, next to the Basilica

V. Budapest, Szent István tér

97 m2
-
2 Bedroom
-
2 Bathroom

275,000,000 HUF

2,835,051 HUF / m2


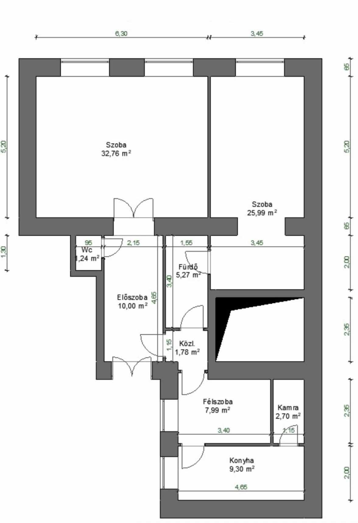
Floor plan
|
Get exact address
Floor plan
|
Get exact address

Presentation of the property

Felújítandó lakás a Bazilika mellett.

Data sheet

Listing type: For sale
Type: Apartment
Bedrooms: 2
Bathrooms: 2
Floor area: 97 m2
Floor: 3.
Asking price: 275,000,000 HUF
Price per square meter: 2,835,051 HUF

Features

condition:Not renovated
view:View to the Basilica
parking:Parking possibility in close distance
heating:Gas individual

Location

Explore the area

DISTRICT V. - DOWNTOWN

One of the smallest in size but a significant one, District V. is at the heart of the city, true downtown of Pest. It’s an elegant area with gorgeous boulevards and pretty squares and home to many of Budapest’s main attractions. The district is home to the beautiful neo-gothic Parliament building and St Stephen’s Basilica along with many restaurants and cafés and five star hotels.

You won’t find too much of the famous nightlife here, but it is a nice place to visit during the day. This area is good for luxury travelers, couples, and families who want to be near all the main attractions. 

Downtown landmarks:

  • Hungarian Parliament Building
  • Shoes on the Danube
  • Széchenyi Bridge
  • Elisabeth Bridge
  • St Stephen’s Basilica
  • Soviet War Memorial
  • Underground Railway Museum
  • Vaci Street (shopping street)
  • Deák-Ferenc Street (fashion street)
  • Liberty Square (Szabadság tér)
  • Elizabeth Square and Budapest Eye
  • Vörösmarty tér
DISTRICT V. - DOWNTOWN
DISTRICT V. - DOWNTOWN
DISTRICT V. - DOWNTOWN

Floor plan

|

Contact


Viktor Valu

+36 70 776 3603

valuviktor@flottinvest.hu

Listed properties

I have read and accept the Privacy Notice. *

Contact


Viktor Valu

+36 70 776 3603

valuviktor@flottinvest.hu

Listed properties

I have read and accept the Privacy Notice. *

We help you to find the best solution!

Contact us!


Flott Invest Real Estate Agency
1054 Budapest, Aulich utca 5.
+36 70 776 3603
valuviktor@flottinvest.hu

Flott Invest Real Estate Agency
The selected property - ID: 24941
I have read and understood the Terms and Conditions. *